Bautzen, DER LANDKREIS

Raum in Bautzen für KFZ-Schilderpräger zu vermieten

eine Wand mit alten, amerikanischen Autokennzeichen
26.01.2026

Ausschreibung, Kennnummer BZ/R

Ihr Gewerbe in den Räumen des Landratsamtes

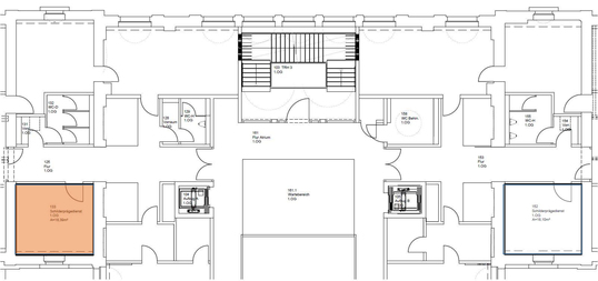
Grundrisszeichnung eines Gebäudes, ein Raum ist farblich hervorgehoben
Lageplan. Vermietet wird der markierte Raum.

Der Landkreis Bautzen schreibt einen Raum zur Nutzung für die gewerbliche Herstellung von KFZ-Schildern  meistbietend aus.

Lage des Raumes:

02625 Bautzen, Rathenauplatz 1, erstes Obergeschoss

Angaben zum Raum

Raum 133: Gesamtfläche von 18,39 m² 

Ein weiterer Raum auf der Etage ist bereits an einen Schilderpräger vermietet.

Mietdauer

Der Raum kann frühestens zum 01.05.2026 bereit gestellt werden. Der Zeitpunkt ist abhängig vom Vergabebeschluss des Technischen Ausschusses.

Der Raum wird befristet bis zum 30. April 2029 vermietet.

Mietkosten

Es wird eine allgemein ortsübliche Mietsumme erwartet (Angabe als Brutto-Kaltmiete). Darunterliegende Angebote werden nicht berücksichtigt.

Weitere Kosten

Neben dem Mietzins fallen die üblichen Nebenkosten in Anwendung des § 1 der Betriebskostenverordnung in Form einer angemessenen Pauschale an. 

Betriebspflicht

Für alle Mieter besteht Betriebspflicht während der Öffnungszeiten der Zulassungsstelle (zur Zeit 30,5 Stunden pro Woche), wobei der Mieter das Betriebsrisiko trägt. Eine Untervermietung ist nicht gestattet.

Bewerben Sie sich bis zum 13. März 2026

Bitte reichen Sie Ihre schriftliche Bewerbung mit

  • dem Nachweis über die Zulassung zur Prägung retroreflektierender Kennzeichenschilder
  • dem Nachweis über die Berechtigung zum Führen des DIN- Prüf- und Überwachungszeichens
  • der zugehörigen Registriernummer
  • einer Kopie Ihrer Gewerbeanmeldung 

bis zum 13.03.2026 in einem verschlossenenen Briefumschlag im Landratsamt Bautzen ein.

Wichtig: Versehen Sie den Briefumschlag bitte mit einem rot gekennzeichneten Vermerk „Bitte nicht öffnen“ sowie der Kennnummer "BZ/R“.

Verspätet eingehende Bewerbungen können wir nicht berücksichtigen.

Unternehmen, die bereits in Bautzen, Rathenauplatz 1 einen Raum mieten, sind von der Ausschreibung ausgeschlossen. 

Zuschlag

Den Zuschlag erhält derjenige Bewerber, der das höchste Mietangebot abgibt. Tritt der Höchstbieter von seinem Angebot zurück oder erfolgt kein Mietvertragsabschluss, erhält der nächst höchste Bieter den Zuschlag.

Vom Zuschlag ausgeschlossen werden Bieter, die Zahlungsrückstände aus bereits beendeten Mietverhältnissen haben. Entstehen im abzuschließenden Mietverhältnis Zahlungsrückstände von mehr als zwei Monatsmieten, führt dies unweigerlich zur Beendigung des Mietvertrages.

Weitere Informationen

Der Fahrzeugbestand im Zulassungsbezirk des Landkreises Bautzen beträgt gegenwärtig etwa 274.000 zulassungspflichtige Fahrzeuge (Stand 2025). Die Zulassungsstellen in Kamenz und Bautzen verzeichnen monatlich durchschnittlich 850 Zulassungsvorgänge, bei denen das Prägen von amtlichen Kennzeichenschildern erforderlich ist.

Wir gewähren dem Mieter die Mitbenutzung aller Anlagen und Einrichtungen für den gemeinschaftlichen Gebrauch (Zugang zum angemieteten Raum sowie der Toilettenanlagen).

Ihre Ansprechpartner im Landratsamt

Ihre Fragen zur Ausschreibung richten Sie sich bitte an die KFZ-Zulassungs- und Fahrerlaubnisstelle.

Ihre Bewerbungsunterlagen senden Sie bitte an das Gebäude- und Liegenschaftsamt.